推奨利用人数
20人~24人
藤和内神田ビル 4階
- 所在地:東京都千代田区内神田2丁目4番4号
- 交通:JR山手線「神田」駅徒歩5分
- 交通2:東京メトロ丸の内線「大手町」駅徒歩7分
- 交通3:東京メトロ銀座線「三越前」駅徒歩8分
| 賃料:683,914円 (税別) | 管理費:97,702円 (税別) |
| 敷金:6ヶ月- | 礼金:- |
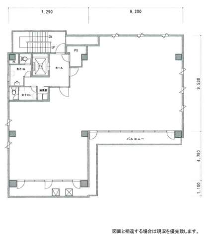
| 面積:146.84m² | 所在階:地上4階 |
| 間取り:事務所 | 築年月:1984年07月 |
| 賃料/管理費 | 683,914円 (税別)/97,702円 (税別) | フリーレント | 0ヶ月 |
|---|---|---|---|
| 敷金/礼金 | 6ヶ月/ - | 内見・入居 | 内見可 |
| 間取り | 事務所 | 面積 | 146.84m² |
| 所在階 | 地上4階 | 最大スペース | |
| 住所 | 東京都千代田区内神田2丁目4番4号 | 最寄駅 | JR山手線「神田」駅徒歩5分 東京メトロ丸の内線「大手町」駅徒歩7分 東京メトロ銀座線「三越前」駅徒歩8分 |
| その他交通 | 築年月 | 1984年07月 | |
| 方角 | 構造 | 鉄骨構造(S造) 8階建 | |
| 契約期間 | 2年間 | 契約形態 | 普通借家 |
| 償却 | 1ヶ月 | 設備 | エレベーター |
| 更新料 | 1ヶ月 | 更新日 | 2025年10月27日 |
| 備考 | |||



お問い合わせの際は、「部屋No.71890」とお伝えください。





























1984年竣工、グレーの外壁の落ち着いた雰囲気の建物です。新耐震基準をクリアした建物です。
基準となるフロアは1フロア約66坪。EV1基、1フロア1テナント利用のオフィスです。
共用部に男女別のトイレと給湯室があり、貸室内は効率よくレイズとすることが可能です。
外堀通りから少し入った場所に立地、周辺は比較的落ち着いたオフィス街です。
周辺には飲食店やコンビニなどもあり利便性も良好です!