推奨利用人数
40人以上
豊島屋ビル 3階
- 所在地:東京都千代田区内神田1丁目13番1号
- 交通:東京メトロ千代田線「大手町」駅徒歩5分
- 交通2:都営新宿線「小川町」駅徒歩5分
- 交通3:JR山手線「神田」駅徒歩6分
| 賃料:1,210,030円 (税別) | 管理費:368,270円 (税別) |
| 敷金:10ヶ月- | 礼金:1ヶ月 |
| 面積:347.83m² | 所在階:地上3階 |
| 間取り:事務所 | 築年月:1972年10月 |
| 賃料/管理費 | 1,210,030円 (税別)/368,270円 (税別) | フリーレント | 0ヶ月 |
|---|---|---|---|
| 敷金/礼金 | 10ヶ月/1ヶ月 | 内見・入居 | 入居可予定 時期2月上旬 |
| 間取り | 事務所 | 面積 | 347.83m² |
| 所在階 | 地上3階 | 最大スペース | |
| 住所 | 東京都千代田区内神田1丁目13番1号 | 最寄駅 | 東京メトロ千代田線「大手町」駅徒歩5分 都営新宿線「小川町」駅徒歩5分 JR山手線「神田」駅徒歩6分 |
| その他交通 | 築年月 | 1972年10月 | |
| 方角 | 構造 | 鉄筋コンクリート造(RC造) 7階建 | |
| 契約期間 | 2年間 | 契約形態 | 普通借家 |
| 償却 | 1ヶ月 | 設備 | エレベーター , OAフロア |
| 更新料 | 1ヶ月 | 更新日 | 2025年10月27日 |
| 備考 | |||



お問い合わせの際は、「部屋No.71894」とお伝えください。





























角地に建ち視認性良好な賃貸ビルです。
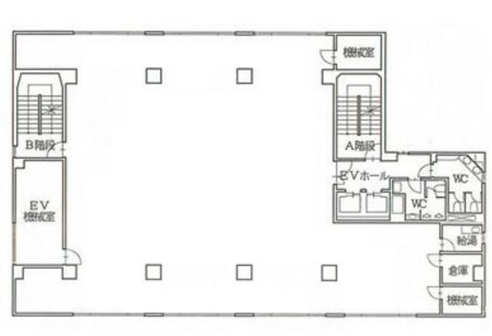
室内はOAフロアで、レイアウトしやすい形状です。
1フロア1テナントなので気兼ねなく使えます。
トイレは男女別で共用部にあります。
周辺にはコンビニや飲食店が点在しているので、ランチにも困りません。