推奨利用人数
15人~19人
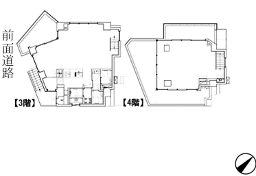
HACO JINGUMAE 3+4階
- 所在地:東京都渋谷区神宮前2丁目26番10号
- 交通:東京メトロ副都心線「北参道」駅徒歩8分
- 交通2:東京メトロ千代田線「明治神宮前」駅徒歩10分
- 交通3:JR山手線「原宿」駅徒歩12分
| 賃料:1,006,764円 | 管理費:0円 |
| 敷金:0ヶ月- | 礼金:0ヶ月 |
| 面積:104.35m² | 所在階:地上3.4階 |
| 間取り:事務所 | 築年月:2025年01月 |
| 賃料/管理費 | 1,006,764円/0円 | フリーレント | 6ヶ月 |
|---|---|---|---|
| 敷金/礼金 | 0ヶ月/0ヶ月 | 内見・入居 | 内見可 |
| 間取り | 事務所 | 面積 | 104.35m² |
| 所在階 | 地上3.4階 | 最大スペース | |
| 住所 | 東京都渋谷区神宮前2丁目26番10号 | 最寄駅 | 東京メトロ副都心線「北参道」駅徒歩8分 東京メトロ千代田線「明治神宮前」駅徒歩10分 JR山手線「原宿」駅徒歩12分 |
| その他交通 | 築年月 | 2025年01月 | |
| 方角 | 構造 | 鉄筋コンクリート造(RC造) 4階建 | |
| 契約期間 | 3年間 | 契約形態 | 普通借家 |
| 償却 | 0ヶ月 | 設備 | OAフロア |
| 更新料 | 0ヶ月 | 更新日 | 2025年10月13日 |
| 備考 | 3階+4階 | ||



お問い合わせの際は、「部屋No.71830」とお伝えください。





























敷金無しの為初期費用を大幅削減して入居が可能な物件です。
SOHO用途としての利用も可能な物件。